一、箱式变压器中性点及外壳接地标准

1、答:

2、箱式变压器中性点及外壳接地标准:

3、1)箱变接地电阻值不应大于 4 欧姆,水平接地极不满足时,应增加垂直接地极。

4、2)接地装置埋设深度不小于 1 米,以满足跨步电压的安全要求。

5、3)所有电气设备外売和底座均应与接地装置可靠连接。

6、4)变压器底座、箱变底座应与接地装置直接连接,连接点均不少于 2 处(可在底座两端设置),以使得其可靠接地。

7、5)所有接地装置均应作热镀锌处理,防金属腐蚀。

8、6)接地装置的所有搭接点必须可靠焊接,搭接长度应为扁钢度的 2倍或圆钢直径的 6倍。

9、7)接地装置边绿经常有人出入的通道处应铺设碎石混凝士路面或沥青路面。

二、箱式变压器型号规范

箱式变压器型号SCB10-100/10/0.4;箱式变压器型号SCB10-160/10/0.4;箱式变压器型号SCB10-200/10/0.4;箱式变压器型号SCB10-250/10/0.4;箱式变压器型号SCB10-315/10/0.4;箱式变压器型号SCB10-400/10/0.4;箱式变压器型号SCB10-500/10/0.4;箱式变压器型号SCB10-630/10/0.4;箱式变压器型号SCB10-800/10/0.4;箱式变压器型号SCB10-1000/10/0.4;箱式变压器型号SCB10-1250/10/0.4;箱式变压器型号SCB10-1600/10/0.4;箱式变压器型号SCB10-2000/10/0.4

三、箱变是箱式变压器吗

一般我们所说的相变,指的就是箱式变压器,它是有一个小房子的外形,一边是高压室,也就是高压电进入到变压器的部分,另外一个就是低压室,也就是把电压变为常用的220伏或者是380伏以后进行送电的一个部分,他一般都分为高压室或者低压室,他是在一个类似于小集装箱的房子里,而且一般都是安装在地面的

箱式变压器

四、箱式变压器拆除过程讲解

1、箱式变压器是一种将高压电源转换为低压电源的设备,通常用于为建筑物或工业设施提供电力。箱式变压器拆除需要严格按照安全规范进行操作,以确保操作人员和周围环境的安全。以下是箱式变压器拆除的一般步骤:

箱式变压器

2、切断电源:在拆除箱式变压器之前,必须切断电源,以确保操作人员不会受到电击。

3、拆除外部连接:拆除箱式变压器的外部连接,包括电线、电缆和管道等。

4、拆除箱体:使用合适的工具(如吊车、扳手等)拆除箱式变压器的箱体。在拆除过程中,应确保操作人员的安全。

5、拆除内部设备:拆除箱式变压器的内部设备,如变压器、开关设备等。

6、清理现场:拆除箱式变压器后,应清理现场,并将废弃物妥善处理。

7、以上是箱式变压器拆除的一般步骤,具体操作可能因箱式变压器的型号、尺寸和现场条件等因素而有所不同。在进行箱式变压器拆除过程中,应确保遵循安全规范,并使用适当的工具和设备。

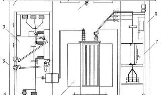
五、10kv箱式变压器都由哪些设备组成

10kV箱式变压器是一种将高压电转换为低压电的设备,通常用于配电系统中。10kV箱式变压器主要由以下设备组成:

1. 变压器本体:是箱式变压器的核心部件,主要由铁芯、绕组和绝缘材料组成。变压器本体的作用是将高压电转换为低压电。

2. 高压开关:用于切断和接通10kV高压电源,保护变压器免受过载和短路等故障的影响。

3. 低压开关:用于切断和接通低压电源,实现对低压用电设备的供电控制。

4. 保护装置:如熔断器、断路器等,用于保护变压器免受过载、短路、过热等故障的影响。

5. 互感器:用于测量和控制变压器的工作状态,如电压、电流等参数。

6. 避雷器:用于保护变压器免受雷电和过电压的损害。

7. 柜体:用于容纳和保护上述设备,并提供必要的通风和散热。

8. 控制和监测装置:如控制按钮、指示灯、仪表等,用于实现对变压器的远程或就地控制和监测。

9. 通信接口:用于实现与上级监控系统或远程终端的通信,便于对变压器的工作状态进行实时监测和控制。

10. 其他辅助设备:如接地装置、照明设备等,用于确保变压器的安全运行。

以上就是10kV箱式变压器的主要设备组成。这些设备相互配合,共同完成高压电向低压电的转换,为低压用电设备提供稳定的电源。

猜你喜欢

联系我们

联系我们

888-888

邮件:admin@500051.cn

工作时间:周一至周五,9:30-18:30,节假日休息

关注微信
关注微信
分享本页
返回顶部